St Peter Port, General

• Well-presented offices within the heart of St Peter Port
• Open plan first floor accommodation - 2,850 sq.ft.
• Garaged secure parking
• 2nd floor also available - 2,841 sq.ft.
Location
Lyric House is a centrally positioned and very well-presented office building, in the heart of St Peter Port's old legal quarter and less than 5 minutes walk from the High Street. Other occupiers within the vicinity include Ravenscroft, Grant Thornton, Walkers Legal and Vistra.
<strong>
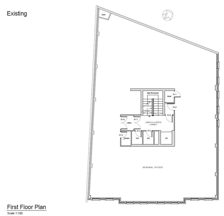
Description
The office is on the first floor, with direct lift access from the ground floor. The space is configured open plan and the specification includes suspended ceilings and LED lighting, carpet-tiled floors, perimeter trunking for power and IT services, plus kitchen. There are communal WC facilities adjacent and heating/cooling is supplied via a Daikin heat recovery VRV air conditioning system.
Accommodation
First Floor - 2,850 sq.ft - a further 2,841 sq.ft. of space also available at 2nd floor.
Parking
6 secured garaged spaces with each floor.
There is also long stay public parking available at the Odeon car park and on street parking in the immediate vicinity.
Tenure
The premises are available by way of a new lease direct with the landlord.
Rent
Rent and terms on application.
In addition to the rent, the tenant will be responsible for contributing towards the service change for the building and the usual occupational costs such as TRP, parochial rates and building insurance.
Availability
Immediate.
Legal
All terms are subject to contract.
Each party shall bear their own legal costs in connection with this transaction.
Viewings by arrangement Via Cherry Godfrey Property





.jpg&w=2048&q=75)

.jpg&w=2048&q=75)
.jpg&w=2048&q=75)

Located in St Peter Port, this property offers excellent accessibility and local amenities.
Loading map...